45 1993 chevy s10 fuse box diagram
Fuse box diagram (location and assignment of electrical fuses) for Chevrolet (Chevy) S10 (1994, 1995, 1996, 1997, 1998, 1999, 2000, 2001, 2002, 2003, 2004). The video above shows how to check for blown fuses in the interior fuse box of your 1993 Chevrolet S10 Blazer and where the fuse panel diagram is located. If your map light, stereo, heated seats, headlights, power windows or other electronic components suddenly stop working, chances are you have a fuse that has blown out.
Chevy 1500 Silverado 2000-2005 Fuse Box Location and Diagram Chevrolet Plymouth Acclaim, Dynasty, LeBaron 1993 Service Manual Download Chevrolet Spectrum 1985-1993 Repair Manual Download Chevy Aveo wiring diagram and fuse box diagram pertaining to Download. Aveo Starter Replacement Wiring Diagrams. Chevrolet Aveo Engine Harness Diagram Download.

1993 chevy s10 fuse box diagram
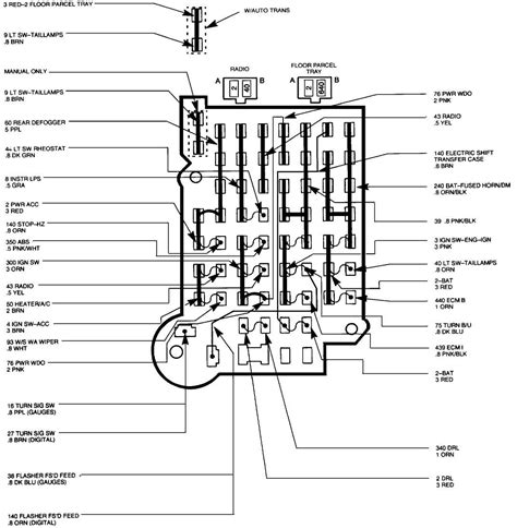
Chevrolet S-10 (1993 - 1994) - fuse box diagram Year of production: 1993, 1994 Instrument panel The fuse block is in the instrument panel on the driver's side. Fuses/Circuit Breaker Name Circuit protected A PWR ACCY Power Door Locks B PWR WDO Power Window 1 STOP/HAZ S Stop Lamps, Hazard Lamps, Chime Module 2 HORN/DM Dome Lamp, … Diagram of a 1993 Chevy s10 fuse box - Chevrolet 1993 S-10 Blazer question. Search Fixya. Browse Categories Answer Questions . 1993 Chevrolet S-10 Blazer ... Diagram of a 1993 Chevy s10 fuse box - 1993 Chevrolet S-10 Blazer. Posted by Anonymous on Dec 29, 2012. Want Answer 0. Acces PDF 1993 Chrysler Engine Diagram battery. Lift the cover for Jul 12, 2017 · 1993 chevy s10 fuse box diagram; 1993 chevy silverado engine diagram; 1994 chevy silverado
1993 chevy s10 fuse box diagram. 1993 GMC C1500 C2500 C3500 Pick Up. 1993 chevy 1500 wiring diagram.It shows the components of the circuit as simplified shapes and the aptitude and signal associates between the devices. 1993 chevy wiring diagram. 1993 Chevy Silverado Wiring Diagram wiring diagram is a simplified all right pictorial representation of an electrical circuit. perspective. 1997 chevy s10 2wd bolt pattern. Chevrolet Plymouth Acclaim, Dynasty, LeBaron 1993 Service Manual Download Chevrolet Spectrum 1985-1993 Repair Manual Download Chevy Aveo wiring diagram and fuse box diagram pertaining to Download. Aveo Starter Replacement Wiring Diagrams. Chevrolet Aveo Engine Harness Diagram Download. Fuse box diagram (fuse layout), location and assignment of fuses and relays Chevrolet S-10 Blazer (1995-2005). Chevrolet Blazer K1500 (1992-1994) Fuse box diagram (fuse layout), location and assignment of fuses Chevrolet Blazer K1500 (1992, 1993, 1994). replace switch if, diagram of a 1993 chevy s10 fuse box chevrolet 1993 s 10 blazer question search fixya diagram of a 1993 chevy s10 fuse box 1993 chevrolet s 10 blazer posted by anonymous on dec 29 2012 here is a diagram of the fuse box for your 92 chevy blazer if you need better resolution please provide an email address, for my 1993 s10
In the table below you'll find the fuse location and description of the fuses of the fuse box on 1993 4.3L, 5.0L, 5.7L TBI equipped 4.3L, 5.0L, and 5.7L pickups. IMPORTANT: The fuse box illustration and fuse descriptions cover the vehicles in the 'Applies To:' box on the right column. The fuse box is located on the driver side of the dash. Location and fuse box layout and diagram for 1993 Chevrolet Cavalier 4 cylinder description of each fuse with what - Answered by a verified Chevy Mechanic. We use cookies to give you the best possible experience on our website. ... Chevrolet S10 Blazer 4x4: 1993 S10 blazer 4 wd. The accessory Chevrolet Astro (1996-2005)…>> Fuse box diagram (location and assignment of electrical fuses and relays) for Chevrolet (Chevy) Astro (1996, 1997, 1998, 1999, 2000 ... engine scheme wiring harness fuse box vacuum diagram timing belt timing chain brakes diagram transmission diagram and engine problems. 1992 chevrolet cavalier j body engine control wiring diagram [114 KB] 1997 chevrolet s10 ground distribution system 22l engine part 1 [37 KB] 1997 chevrolet s10 ground distribution system 22l engine part 2 [31 KB]
GMC Jimmy (1993) - fuse box diagram Year of production: 1993 Fuses and Circuit breakers Name Circuit protected Ampere rating [A] Circuit Breaker Inst. Lps. Instrument Panel Lights, Headlight Warning Buzzer, Rear Defogger Switch Light, Ash Tray Light, Four Wheel Drive Indicator Light, RR Wiper SW Lamp, Fog Lamp Switch Light 5 Pwr. Accy Power Door … The video above shows how to replace blown fuses in the interior fuse box of your 1993 Chevrolet S10 Blazer in addition to the fuse panel diagram location. Electrical components such as your map light, radio, heated seats, high beams, power windows all have fuses and if they suddenly stop working, chances are you have a fuse that has blown out. 1990 Chevy Truck Fuse Box Diagram and Fuse Panel: I Have Lost My Diagram For The Fuse Panel. My - 15+ 1990 Chevy Truck Fuse Box Diagram .1990 Chevy Truck Fuse Box Diagram and Fuse Panel: I Have Lost My Diagram For The Fuse Panel. 1993 Chevy s10 Blazer. sounds like a bad, burnt wire, or a blown fusible link. It runs on starter fluid or gas put in the air system, but the fuel pump, (electric) is not working. These types of problems can be hell to track down. Fusible links can appear good, but be bad.
Title: 1993 Chevy S10 Fuse Box Diagram Author: OpenSource Subject: 1993 Chevy S10 Fuse Box Diagram Keywords: 1993 chevy s10 fuse box diagram, diagram of a 1993 chevy s10 fuse box fixya, 93 s10 fuse box diagram wiring diagram pictures, where is the fuel pump relay fuse located on a 1993 chevy, 1993 chevy blazer 4wd fuse box diagram circuit wiring, need a diagram of fuse box for a 1993 chevy s10 ...
Chevy Silverado Radio Wiring Harness Diagram With Simple Pics 6703 throughout 1994 Chevy Silverado Wiring Diagram | Fuse Box And Wiring Diagram. From the thousands of photographs on the internet regarding 1994 Chevy Silverado Wiring Diagram, we all picks the top libraries together with ideal resolution exclusively for you, and this photos is ...
1993 chevy blazer fuse box diagram - Cars & Trucks. Clicking this will make more experts see the question and we will remind you when it gets answered.
The fuse panel for the S10 is located on the right side of the dash panel. Open the driver's side door and look at the side of the dash. Remove the fuse box cover. On the back of the cover is the diagram for the fuse box. If you do not have this diagram, try: 1996 Chevrolet S10 Pickup Fuse Box Diagram Circuit Wiring Diagrams
Fuse box diagram (fuse layout), location and assignment of fuses Chevrolet S-10 Blazer, GMC S-15 Jimmy and Oldsmobile Bravada (1982-1994).
Thanks for your interest in Busbee's Trucks And Parts. In you original post, the engine was running too rich. 1993 chevy 2500 wiring diagram here you are at our site, this is images about 1993 chevy 2500 wiring diagram posted by Ella Brouillard in 1993 category on . The fuse panel for the S10 is located on the right side of the dash panel.
The fuse panel for the S10 is located on the right side of the dash panel. Open the driver's side door and look at the side of the dash. Remove the fuse box cover. On the back of the cover is the diagram for the fuse box. If you do not have this diagram, try: 1996 Chevrolet S10 Pickup Fuse Box Diagram Circuit Wiring Diagrams
1988 Chevrolet: fuse block..wiring diagram..20 van, V-8 w/ 350, 5.7 L… I need a fuse block wiring diagram for my 1988 Chevrolet G-20 van, V-8 w/ 350, 5.7 L TBI. Not getting power to one side - Answered by a verified Chevy Mechanic
Acces PDF 1993 Chrysler Engine Diagram battery. Lift the cover for Jul 12, 2017 · 1993 chevy s10 fuse box diagram; 1993 chevy silverado engine diagram; 1994 chevy silverado
Diagram of a 1993 Chevy s10 fuse box - Chevrolet 1993 S-10 Blazer question. Search Fixya. Browse Categories Answer Questions . 1993 Chevrolet S-10 Blazer ... Diagram of a 1993 Chevy s10 fuse box - 1993 Chevrolet S-10 Blazer. Posted by Anonymous on Dec 29, 2012. Want Answer 0.
Chevrolet S-10 (1993 - 1994) - fuse box diagram Year of production: 1993, 1994 Instrument panel The fuse block is in the instrument panel on the driver's side. Fuses/Circuit Breaker Name Circuit protected A PWR ACCY Power Door Locks B PWR WDO Power Window 1 STOP/HAZ S Stop Lamps, Hazard Lamps, Chime Module 2 HORN/DM Dome Lamp, …
0 Response to "45 1993 chevy s10 fuse box diagram"
Post a Comment